70m² Granny Flat Exemption Service NZ - ProjectX
70m² Granny Flat Exemption Service
Build with confidence.
Stay compliant.
Protect your future sale.
From 15 January 2026, certain standalone dwellings up to 70m² can be built without a building consent provided all exemption conditions are met. ProjectX helps you use this pathway correctly.
"We manage the full council-facing process, technical documentation, construction oversight, and connect you with trusted builders/modular home companies near your location, while providing quality assurance to ensure your granny flat is Building Code compliant, insurable, and stands up at resale."
- ProjectX Management Granny Flat Exemption Specialists

Exemption Speed + Compliance Certainty
Council pathway, QA, and completion pack
Important: This is a building consent exemption only.
Planning rules still apply, and some projects may require resource consent depending on site conditions. Our platform Plot Potential helps in analysing the site for planning, engineering and development constraints to provide you the right answer before proceeding ahead for your granny flat.
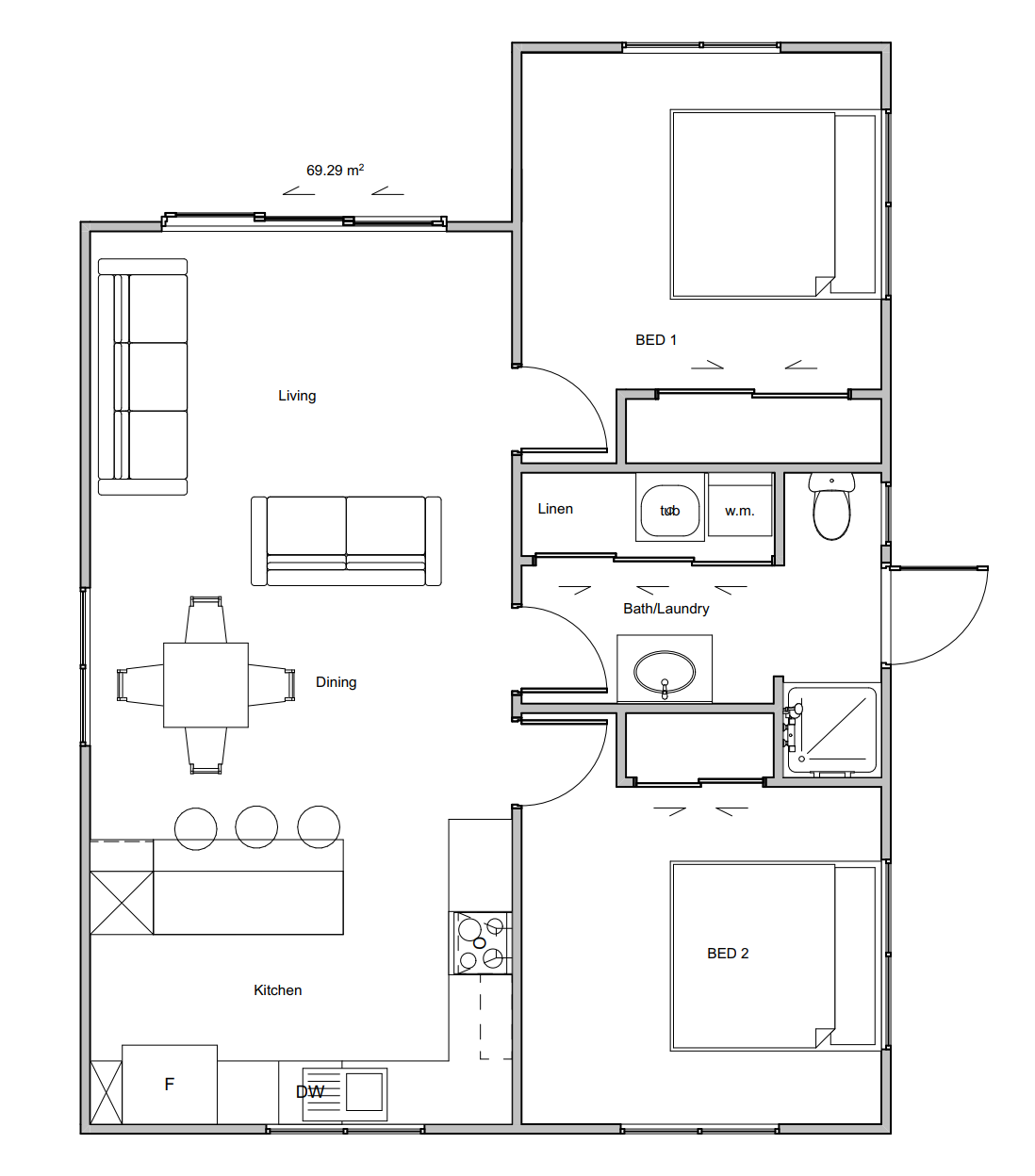
What the 70m² Exemption Allows
If all conditions are met, you may build a standalone dwelling up to 70m² without applying for a building consent.
However, the exemption does not remove your legal obligations. The build must still:
- Comply fully with the NZ Building Code
- Be designed and built under licensed professional supervision
- Follow council notification requirements before and after construction
- Meet planning rules and natural hazard requirements
Failure to meet any condition can result in infringement fees, Notices to Fix, or the work being treated as unconsented.
ProjectX exists to ensure that does not happen.
Planning and Resource Consent Still Matter
The building consent exemption operates alongside the planning system.
Resource consent may still be required
Depending on zoning, overlays, site coverage, access, servicing, or rental intent, a resource consent may still be required. ProjectX checks this early, before design is finalised, so there are no surprises later.
Key Exemption Rules You Must Meet
To qualify for the 70m² exemption, your project must satisfy all of the following:
Maximum size
The dwelling must not exceed 70m².
Building Code compliance
All work must comply with the NZ Building Code, even without inspections.
Licensed professionals
Restricted building work must be carried out or supervised by Licensed Building Practitioners, and services by registered trades.
Council notifications
Council must be notified before construction starts and after completion, with all required documentation submitted.
Natural hazard assessment
The site must be free from unmanaged natural hazards, or risks must be appropriately addressed.
Boundary and allotment rules
There are constraints around building over boundaries or across multiple allotments.
The ProjectX End-to-End Process
Phase 1
Feasibility and Exemption Eligibility
We assess whether your project is suitable for the exemption pathway, including:
Included
- •70m² eligibility and exemption fit
- •Site constraints and natural hazard checks
- •Planning and resource consent risk assessment
Deliverable
Eligibility summary and recommended pathway. Exemption only, planning only, or combined.
Phase 2
PIM Application and Technical Documentation
A Project Information Memorandum is mandatory before construction starts. ProjectX prepares and lodges a complete PIM application, including:
Included
- •Architectural drawings and site plans
- •Structural design, calculations, specifications, and Certificates of Work
- •Plumbing and drainage documentation
- •Servicing and wastewater design where applicable
Deliverable
A PIM-ready technical pack, lodged and tracked by ProjectX.
Phase 3
Pre-Start Council Notification and Build Readiness
Once the PIM is issued, we:
Included
- •Support the pre-start council notification
- •Confirm LBP supervision and registered trade engagement
- •Set up the compliance file from day one
Deliverable
Pre-start notification pack and compliance tracker.
Phase 4
Construction Quality Assurance
Even without inspections, compliance evidence is critical. ProjectX provides:
Included
- •A structured QA checklist aligned to Building Code outcomes
- •Ongoing compliance tracking against approved design
- •Evidence-based documentation as work progresses
Deliverable
QA records, inspection notes, and a live compliance summary.
Phase 5
Completion Documentation and Close-Out
We coordinate and collect all required close-out evidence, including:
Included
- •Records of Work from LBPs
- •Registered trade certificates
- •As-built drawings
- •Producer Statements where applicable
- •Product warranties and compliance documentation
Deliverable
A single, council-ready Completion Pack suitable for resale, insurance, and lending.
Phase 6
Post-Completion Council Notification
ProjectX supports:
Included
- •Post-completion council notification and document submission
- •Guidance on development contributions identified through the PIM
Deliverable
Proof of submission, document register, and final compliance archive.
What You Get With ProjectX
Full council-facing process management
Coordinated architectural, structural, and services documentation
Practical quality assurance without council inspections
A clear, defensible compliance narrative
Confidence for insurance, lending, and future sale
70m² Granny Flat Exemption Frequently Asked Questions
Is a building consent really not required?
Yes, if all exemption conditions are met. The exemption removes the need for a building consent, but not the requirement to comply with the NZ Building Code. Missing any condition can result in the work being treated as unconsented.
Do I still need council involvement?
Yes. You must obtain a PIM, notify the council before construction, and submit documentation after completion. ProjectX manages all council-facing steps.
Do I need resource consent?
Possibly. The exemption does not override planning rules. ProjectX assesses this early and advises on the correct pathway.
Can any builder construct an exempt granny flat?
No. Restricted building work must be carried out or supervised by an LBP, and services by registered trades. ProjectX ensures correct licensing and supervision are in place.
Why is a PIM required?
The PIM provides essential site and servicing information and identifies potential development contributions. Construction cannot begin until it is issued.
Are development contributions payable?
In some cases, yes. Councils may assess them through the PIM process. ProjectX flags this early so it can be factored into feasibility.
What documentation is required?
A full technical and compliance package is still required, including drawings, structural documentation, Records of Work, trade certificates, and as-built plans. ProjectX coordinates and quality-checks everything.
What is a Record of Work and why does it matter?
A Record of Work is a legal declaration document by an LBP confirming Building Code compliance. It is mandatory under the exemption and critical for resale and insurance.
Will this affect insurance or resale?
Only if documentation is missing or unclear. ProjectX delivers a complete compliance file designed to stand up years later.
What happens if the exemption rules are not followed?
Councils can issue infringement fees, Notices to Fix, or require remedial work or removal. The risk can be significant.
Why use ProjectX?
Because the exemption removes inspections, not responsibility. ProjectX provides structure, oversight, and certainty, so you get speed without sacrificing compliance.
Why ProjectX
ProjectX is your one-stop compliance partner. We manage council processes, construction oversight, access to experienced builders, and quality assurance to ensure your granny flat exemption remains compliant, so you can live and sell with complete peace of mind.
Start Your 70m² Granny Flat Exemption Pathway
Tell us your address and goal — we’ll assess eligibility, planning risk, and guide you through the full exemption pathway.
Client Information
Tell us who you are and how we can reach you.